Новият подробен план предвижда запазване на къщата в автентичния ѝ вид
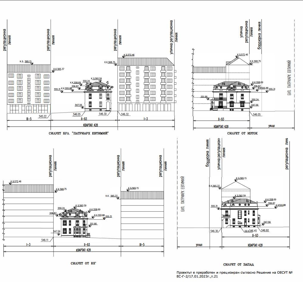
Къщата на Гешов на бул. „Патриарх Евтимий“ № 7 да бъде запазена в автентичния вид, това предвижда одобреният проект за подробен устройствен план от главния архитект на Столична община арх. Здравко Здравков. Със заповедта на главния архитект се изменя плана за регулация и застрояване и работен устройствен план за УПИ III-4, кв. 428, м. „ГГЦ Зони Г8 и Г10“ по плана на гр. София, район „Средец“.
Одобреният през 2004 г. подробен устройствен план предвиждаше премахване на сградата – паметник на културата, както и ново свързано застрояване с предназначение "хотел на 7 етажа", във фасадата на който само се маркира съществуващата стара сграда. По настояване на кмета на Столична община Йорданка Фандъкова за запазване на паметника на културата стартира процедура за изменение на действащия план и изработване на работен устройствен план. Заповедта за изработването на плана беше обжалвана от собственика на имота и след дълги съдебни процедури делото беше решено в полза на Столична община от Върховния административен съд.
Новият план предвижда запазване на съществуващата в имота сграда – къщата на Гешов, която притежава статут на единична архитектурно-строителна и художествена недвижима културна ценност с категория „местно значение” и попада в обхвата на групова недвижима културна ценност „Жилищна зона „Център”
Освен запазването на сградата в автентичния ѝ вид, се запазват и зелените площи в имота, без да се предвижда ново застрояване. Отреждането на имота е за детско заведение, каквото е било в продължение на десетки години, преди придобиването му от сегашния собственик.
Одобряването на подробния устройствен план за имота е важна част от стъпките, които предприема Столична община за спасяването на емблематичната сграда на бул. „Патриарх Евтимий“ № 7 и е част от цялостната ѝ политика за опазване на културното, историческото и архитектурното наследство на София.
 
		 
		 
     
     
		 
    